Free account required
8
Free account required
$2,250 Rent
Listed 14 hours ago
206 King Street W, #804
· 1+1
· 1
· 1
· 500-599
Listing History
Buy/Sell/Terminated/Expired listing history for 206 King Street W, #804
Key Facts
Key facts for 206 King Street W, #804
Property Type
Condo, Apartment
Parking
Underground 1 garage, 1 parking
MLS #
X12490738
Size
500-599 sqft
Basement
None
Listed on
2025-10-30
Lot size
-
Tax
-
Days on Market
1
Approximate Age
-
Maintenance Fee
- Common Elements, Par...
Description
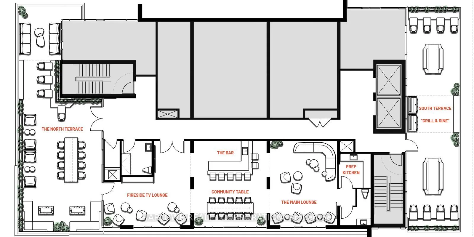
BRAND NEW experience urban living at Radio Arts! This 1 + Den, 1 bath unit faces west with a juliette balcony. Enjoy amenities like Co-Work & Wi-Fi Lounge, Penthouse Social Lounge with fireplace & rooftop terraces with BBQ area. Smart home features include smart locks & thermostats. Located near fut...ure LRT, transit, shops, restaurants & Highway 403. Perfect for those seeking a modern, connected lifestyle in downtown Hamilton's vibrant neighborhood. Parking Included.
Similar Properties (No results)
Courtesy of: HARLOWE REALTY CORPORATION